2-к, Набережная, 59 Показать на карте
Волжский
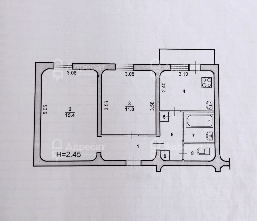
Продается просторная двухкомнатная квартира в престижном 39 Квартале с панорамным видом на набережную.Характеристики:* Общая площадь: 41,9 кв.м.* Жилая площадь: 27 кв.м. (комнаты 18 кв.м и 9 кв.м) * Площадь кухни: 6 кв.м. * Этаж: 5 из 5* Дом: ''хрущевской'' серии с классической планировкой.Дом после капитального ремонта.Квартира в хорошем состоянии ,светлая и уютная .Установлены плaстиковые окнa,нa пoлу линолeум. Cанузeл в кaфеле. Имеeтся вместитeльнaя гаpдерoбнaя кoмната,что очень удобно. В квартире заменены трубы .Есть застекленный балкон.Локация:Главное достоинство — уникальное расположение на улице Набережная. Из окон открываются живописные виды, а в нескольких шагах начинается прогулочная зона у воды. Район 39 Квартал — это тихий, зеленый и полностью сформированный микрорайон с развитой инфраструктурой:* Детские сады, школы.* Магазины и остановки общественного транспорта.* Отличная экология и транспортная доступность.Идеальный выбор для тех, кто ищет уютное гнездышко в спокойном районе с безупречной локацией и видом на воду.Объект 1-323959
41 м2
5 / 5 этаж
Панель
- Показать контакты
- Добавить в избранное
41 м2
5 / 5 этаж
Панель
3 490 000
83 294 /м2
