1-к, Горького, 33 Показать на карте
Волжский
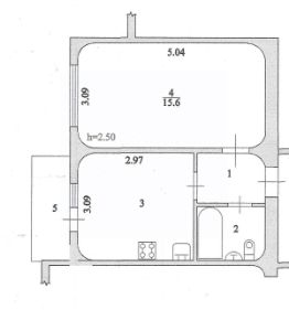
Продаётся уютная и компактная 1-комнатная квартира в районе 101- Квартал на улице Горького.Общая площадь составляет 19,4 кв.м, что идеально подходит для комфортного проживания одного человека или пары. Квартира расположена на 2 этаже 5-этажного кирпичного здания, что гарантирует удобный подъем и спуск.Жилая площадь в 12,1 кв.м позволяет с легкостью разместить всю необходимую мебель. Состояние квартиры хорошее: установлено пластиковое окно, натяжной потолок, на полу линолиум , санузел раздельный. Проведено горячее водоснабжение, сделан вывод под раковину, установленная кухонная зона .А также большим преимуществом является то, что есть кладовая, которая находится в ходной зоне общего коридора ,возле квартиры ,что позволяет хранить личные вещи.Бонусом для покупателя остается мебель Район отличается развитой инфраструктурой — все необходимое, включая магазины, школы, детские сады и остановки общественного транспорта, находится в шаговой доступности. Отличная транспортная развязка позволяет быстро добраться в любую часть города, рядом Вокзал.Это отличный вариант для первой собственной недвижимости, инвестиции или приобретения с использованием ипотечных программ или материнского капитала. Квартира ждет своего нового хозяина! Чистая продажа! Один взрослый собственник!Объект 1-325919
17 м2
2 / 5 этаж
Кирпич
- Показать контакты
- Добавить в избранное
17 м2
2 / 5 этаж
Кирпич
1 500 000
84 270 /м2
