Если цена в объявлении изменится, мы сразу сообщим вам об этом на электронную почту.
Нажимая «Подписаться», вы соглашаетесь с правилами.
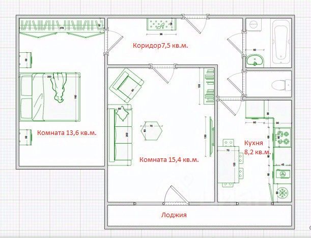
продам 2-к, Мира, 544 550 000 ₽
14 ноя
Дата публикации объявления
Обн. 19 апр
Дата обновления объявления
5
Количество просмотров (+ просмотры за сегодня)
87 165 ₽/м²
Чистая продажа
Термин "Чистая продажа" означает, что в квартире никто не прописан или
есть куда выписаться и вывезти вещи. Это лучший вариант для покупателя.
Вероятность срыва сделки минимальна.