3-к, им В.И.Ленина площадь, 37 Показать на карте
Волжский
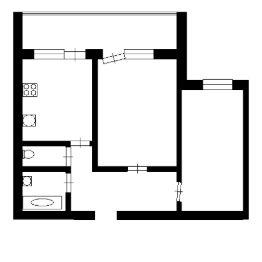
Продаётся уютная трехкомнатная квартира сталинской планировки в центре г. Волжского.Дом кирпичный, 1957 года постройки. В доме железобетонные перекрытия.Идеальный вариант для тех, кому важен комфорт и удобство!Это отличное предложение в сочетании цены и качества, идеально подходит для семей с детьми. Общая площадь квартиры 73.00 кв.м.жилая площадь 46,0 кв.м.кухня -6,1 кв.м.есть ТРИ шкафа-кладовыебонусом ДВЕ кладовые в подъезде!Рядом с домом расположены учебные заведения - средняя школа 1, детский сады 62 Ласточка и средняя школа 14 Зеленый шум, городские поликлиники 1 и 3, детская поликлиника 1. Также в шаговой доступности расположены развлекательные зоны - альпинистский комплекс, веревочный городок, экопарк Крошка на ладошке и парк культуры и отдыха Волжский.Неподалеку от дома есть магазины для удобной и быстрой покупки продуктов - Пятёрочка, супермаркеты 79 Покупочка и Магнит.Эта квартира станет вашим идеальным жильем, где вы найдете место для комфортного проживания и отдыха всей семьей. Спешите приобрести этот жемчужину в недвижимости!Номер объекта: #1/539109/18713
73 м2
3 / 3 этаж
Кирпич
- Показать контакты
- Добавить в избранное
73 м2
3 / 3 этаж
Кирпич
5 000 000
68 493 /м2